🔑 出租28Hse
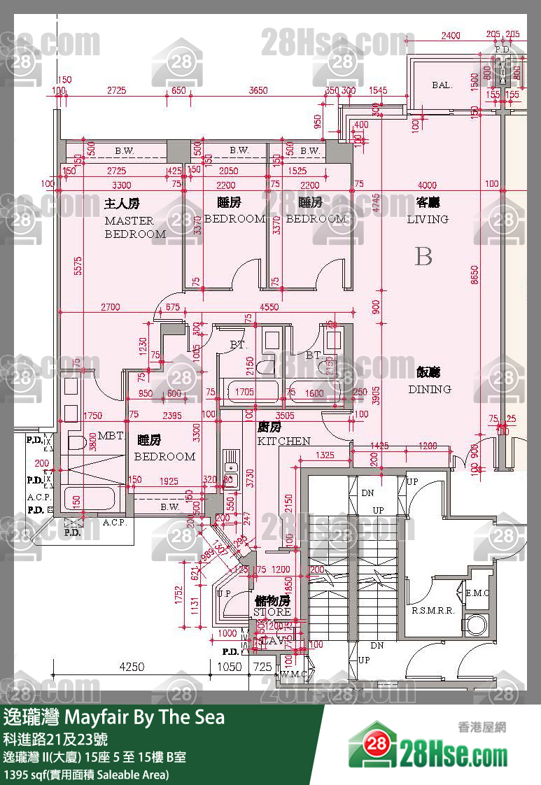
逸瓏灣
中層
實用 1,395 呎4 房0
相片
4 張
1 / 4
單位資料
月租
$53,800/月
呎價 (實)
—
實用面積
1,395 呎
建築面積
—
房數
4 房
座
樓層
中層
單位
—
地產公司 / 經紀
中原地產代理限公司
時間軸 / 來源
刊登日期
2026-04-19
最近更新
2026-04-19
平台 ID
3816290
首次發現
2026-04-19 12:44
最近抓取
2026-04-19 15:32
狀態
在售
標籤
4 房 , 4 浴室向東北私人屋苑信和望園景望泳池景望海景